ISWB防爆臥式管道離心泵產品概述:
此款ISWB防爆臥式管道離心泵配備防爆電機,臥式結構,為ISW管道泵的基礎上研發出的產品,此款防爆管道泵適用于煤礦井下,油質輸送,化工領域。可在選型時選擇不銹鋼材質,鑄鋼材質等。此款管道泵性能突出,優點明顯。其產品結構科學,外形工整,使用壽命更是超越過去款式的泵種,它是作為行業的領先水平產品而誕生的。
ISWB防爆臥式管道離心泵用途:
1、ISW臥式管道離心泵供輸送清水及物理化學性質類似于清水的其它液體之用,適用于工業和城市給排水、高層建筑增壓送水、園林噴灌、消防增壓、遠距離輸送、暖通制冷循環、浴室等冷暖水循環增壓及設備配套,使用溫度t≤80℃。
2、ISWR臥式熱水管道離心泵廣泛適用于:冶金、化工、紡織、造紙以及賓館飯店等鍋爐熱水增壓循環輸送及城市采暖系統,ISWR型使用溫度t≤120℃。
3、ISWH臥式不銹鋼管道離心泵,供輸送不含固體顆粒,具有腐蝕性、粘度類似于水的液體,適用于石油、化工、冶金、電力、造紙、食品制藥和合成纖維等部門,使用溫度為-20℃~+120℃。
4、ISWB防爆臥式管道離心泵供輸送汽油、煤油、柴油等油類產品或易燃、易爆液體,被輸送介質溫度為-20~ +120℃。
特色:
工作平穩:泵軸的肯定同心度及葉輪優良的動態平衡,確保平穩工作,絕無振蕩。
滴水不漏:不一樣原料的硬質合金密封,確保了不一樣介質運送均無走漏。
噪音低:兩個低噪音軸承支撐下的水泵,工作平穩,除電機弱小動靜,根本無噪音。
故障率低:布局簡略合理,有些選用世界一流質量;配套,整機無故障工作時間大大提高。
修理便利:替換密封、軸承,簡便便利。
占地更省:出口可向左、向右、向上三個方向,便于管道安置裝置,節約空間。
ISWB防爆臥式管道離心泵附件尺寸
隔振器安裝尺寸 SD型隔振墊0.5基本尺寸
ISWB防爆臥式管道離心泵安裝方式
1.剛性安裝
11KW以上時,隔振器與基礎可鉆膨脹螺栓相聯。說明:7.5KW以下水泵可配隔振墊直接安裝在基礎上。
2.柔性安裝
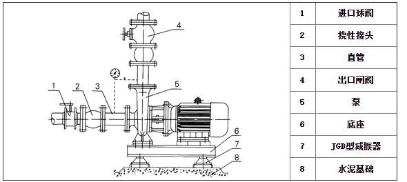
ISWB防爆臥式管道離心泵現場使用圖
結構:

性能曲線圖:

參數表:

故障排除法:
|
故障現象
|
故障原因
|
排除方法
|
|
1、管道離心泵不出水
|
a、進出口閥門未打開,進出管路堵塞,流道葉輪堵塞。
b、電機運行方向不對,電機缺相轉速很慢。
c、吸入管漏氣。
d、泵沒灌滿液體,泵腔內有空氣。
e、進口供水不足,吸程過高,底閥漏水。
f、管路阻力過大,泵選型不當。
|
a、檢查,去除堵塞物。
b、調整電機方向,緊固電機接線。
c、擰緊各密封面,排除漏氣。
d、灌滿液體并打開排氣閥,排盡空氣。
e、管道離心泵停機,檢查、調整(并網自來水管或帶吸程使用易出現此現象)。
f、減少管路彎道,重新選泵。
|
|
2、管道離心泵流量不足
|
a、先按1.原因檢查。
b、管道離心泵流道葉輪部分堵塞,水垢陳積,閥門開度不足。
c、電壓偏低。
d、葉輪磨損。
|
a、先按1.排除。
b、去除堵塞物,重新調整閥門開度。
c、穩壓。
d、更換葉輪。
|
|
3、管道離心泵電流過大
|
a、超過額定流量使用。
b、吸程過高。
c、管道離心泵軸承磨損。
|
a、調節流量,關小出口閥門。
b、降低。
c、更換軸承。
|
|
4、管道離心泵雜音振動
|
a、管路支撐不穩。
b、液體混有氣體。
c、產生汽蝕。
d、軸承損壞。
e、電機超載發熱運行。
|
a、穩固管路。
b、提高吸入壓力排氣。
c、降低真空度。
d、更換軸承。
e、調整按5。
|
|
5、管道離心泵電機發熱
|
a、流量過大,超載運行。
b、碰擦。
c、電機軸承損壞。
d、電壓不足。
|
a、關小出口閥。
b、檢查排除。
c、更換軸承。
d、穩壓。
|
|
6、水泵漏水
|
a、機械密封磨損。
b、泵體有砂孔或破裂。
c、密封面不平整。
d、安裝螺栓松懈。
|
a、更換。
b、焊補或更換。
c、修整。
d、緊固。
|
永嘉泉達的訂貨請盡量提供:
1.型號2.口徑3.揚程(m)4.流量5.電機功率(KW)6.轉速(R/min)7.材質是否帶附件8.電壓(V)

感謝訪問泉達,我公司主要生產管道泵,自吸泵,排污泵等產品
相關產品:
SGB立式防爆管道泵 IHGB立式不銹鋼防爆管道離心泵 SG管道增壓泵 SGR立式熱水管道泵 ISWR臥式熱水管道泵
GW管道排污泵 ISWH臥式不銹鋼管道離心泵 CDLF不銹鋼立式多級管道泵 SGP立式不銹鋼管道泵 YG防爆管道離心泵 ISWB防爆管道離心泵 GDL立式多級管道泵 IHG不銹鋼管道泵 ISG管道離心泵 SGR熱水管道泵